604.805.8557

35 - 1216 Johnson Street

Scott Creek, Coquitlam


$920,000

SOLD

35 - 1216 Johnson Street, Scott Creek, Coquitlam

Updated & Renovated End Unit at Wedgewood Hills


Turnkey and ready to enjoy, this home is perfect for you. With over 2200sqft of living space spread over three floors, you will enjoy the indoor and outdoor living space that is highly sought after but very rare to find in townhomes, especially at this price point! Located in an area where walkable is real, you will have shopping, restaurants, schools and all the different transit options within an easy walk - no big hills and good sidewalks everywhere. The home has an easy level entry and three spacious bedrooms upstairs making it feel like a home. Come and see what an updated and renovated end unit home in a well-managed development offers for great living. Showings are by appointment only.

 

Features Of
This Property


MLS®: 1216 Johnson Street, Coquitlam
Type: Townhome
Bedrooms: 3
Bathrooms: 3
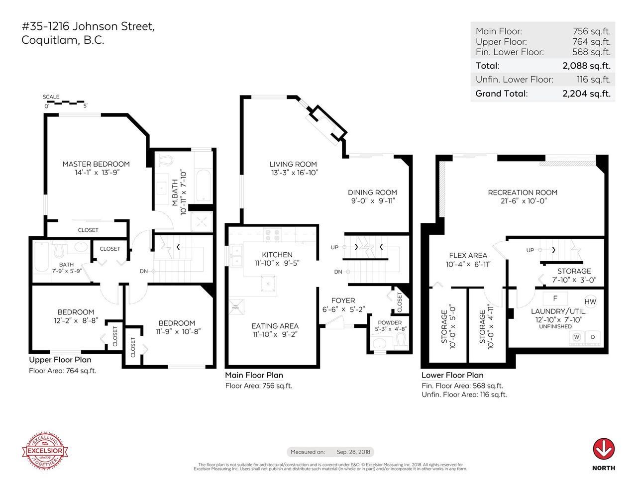
Square Feet: 2,204 sqft
Full Baths: 2
Half Baths: 1
Taxes: $3,427.48 (2020)
Parking: 2 Total 2 Covered Front Access
Fireplaces: 1 Natural Gas
Balcony/Patio: Balcon(s), Fenced Yard
Basement: Fully Finished
Rear Exposure: Southern
Storeys: 3
Year Built: 1990
Style: 2 Storey w/Bsmt.
Construction: Southern
Rental Restriction: Rentals Allowed

Floorplan 1

Dimensions


Foyer: 6'6" X 5'2"
Power Room: 5'3" X 4'8"
Kitchen: 11'10" X 9'2"
Eating Area: 11'10" X 9'2"
Dining Room: 9'0" X 9'11"
Living Room: 13'3" X 16'10"
Bedroom: 11'9" X 10'8"
Bedroom: 12'2" X 8'8"
Bathroom: 7'9" X 5'9"
 
Master Bedroom: 14'1" X 13'9"
Master Bathroom: 10'11" X 7'10"
Recreation Room: 21'6" X 10'10"
Flex Area: 10'4" X 6'11"
Storage : 10'0" X 5'0"
Storage: 10'0" X 4'11"
Storage: 7'10" X 3'0"
Laundry/Utility (unfinished): 12'0" X 7'10"
 

Questions, comments or requests?